• Studio
  • showroom
  • Contact

Um Design Studio

  • Studio
  • showroom
  • Contact

Casa Isa

Tipologìa: Vivienda Multifamiliar, Remodelaciòn

Fecha del Proyecto: 2019

Ubicación: Barquisimeto- Este. 3001. Lara. Venezuela.

Área construida: 358 m2

Área de Intervención: 27 mts2

Arquitecto: Alexander Coronel

Equipo de diseño: UM Design Studio

Descripción:

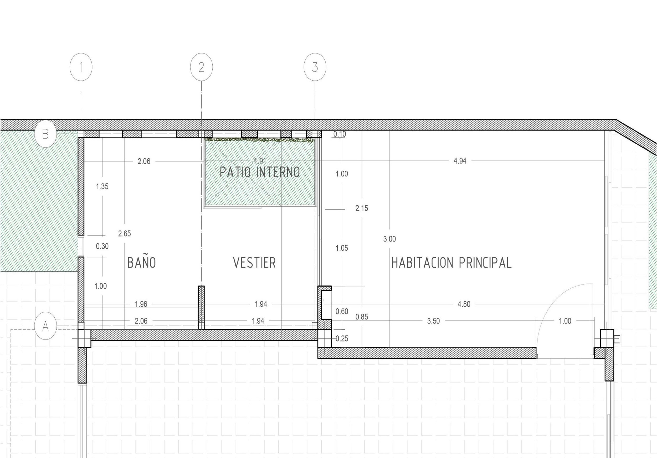
Se propone la conformacion de una habitacion principal en la planta baja de la casa en un anexo (estudio). La propuesta contempla la contruccion de un modulo de servicios (bano, vestier, patio interno). La estructura del modulo anexo sera metalica, en el sitio se realizara la escavacion para las funcaciones.

La imagen propuesta es de caracter contemporaneo y se realiza una mescla entre lo moderno y los rustico de alguno de los acabados actuales en la vivienda.

La iluminacion forma poarte fundamental y se propone la ampliacion de su visuales hacia el patio posterior y con un patio interno que bana de luz las areas

Imagen2.png
Imagen6.png
Imagen5.jpg
Imagen1.jpg
Imagen8.png
Imagen11.png
Imagen12.png
Imagen13.jpg
Imagen10.png
Imagen14.png
Imagen15.png

© 2024 | UM DESIGN STUDIO.

CONTACT